Spațiu comercial generos de 477 mp utili, ideal pentru diverse activitati
ID anunt: 2391
Kabi House vă propune spre vânzare un spațiu comercial premium, situat în prestigiosul complex Cortina North – Pipera, proiect finalizat în 2023.
Cu o suprafață utilă de cca 476,9 mp utili, acest spațiu versatil este ideal pentru activități de tip showroom, birouri, cabinete medicale, magazin specializat, centru educațional sau cosmetică medicală – excluzând domeniul HORECA.
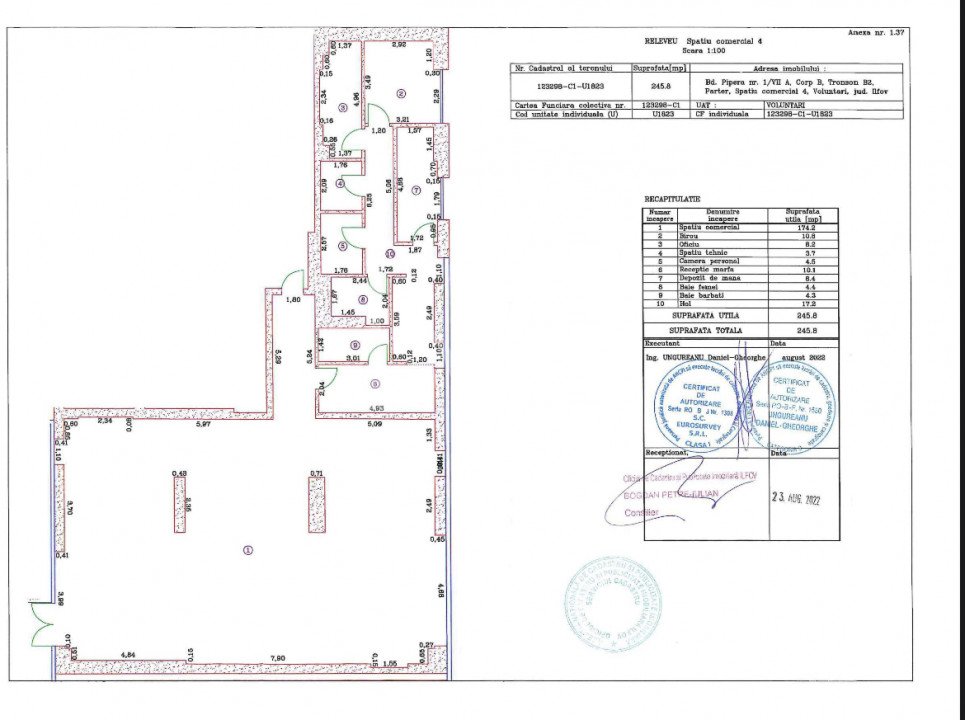
Compus din:
– Spațiu comercial generos – 290,2 mp
– Birou – 22,6 mp
– Oficiu – 10,8 mp
– Spațiu tehnic mic – 3,9 mp
– Spațiu tehnic mare – 27,6 mp
– Cameră personal B – 13,2 mp
– Cameră personal F – 13,9 mp
– Recepție marfă – 6,0 mp
– Depozit de marfă mic – 24,3 mp
– Depozit de marfă mare – 34,1 mp
– Baie femei – 4,6 mp
– Baie bărbați – 5,0 mp
– Hol – 20,7 mp
Situat la parter, spațiul beneficiază de două intrări principale și un acces secundar din interiorul imobilului, vitrine generoase și vizibilitate excelentă. În plus, complexul rezidențial integrează peste 1.500 de apartamente și oferă facilități excepționale: Centru Wellness, piscină semiolimpică, pistă de alergare, locuri de parcare pentru clienți și vizitatori.
Preț: 1.471.554 euro + TVA
Spațiul se predă la gri, urmând a fi personalizat de fiecare proprietar în funcție de specificul activității.
Un spațiu gândit pentru performanță și vizibilitate maximă în inima nordului capitalei.
Disponibilitate imediata!
Caracteristici
Etaj: Parter
An constructie: 2023
Suprafete
Suprafata utila: 476.90 m2
Cladire
Stadiu constructie: finalizata
Orientare: Izolatii termice (Exterior, Interior, Bloc izolat termic)














